Khẩu độ nhà xưởng là gì? Khái niệm, cách tính và lưu ý kỹ thuật
Trong thiết kế nhà xưởng công nghiệp, việc xác định khẩu độ nhà xưởng là một trong những bước quan trọng nhất của quá trình thiết kế kết cấu. Vậy khẩu độ nhà xưởng là gì? Cách tính khẩu độ nhà xưởng như thế nào? Khẩu độ nhà xưởng có ảnh hưởng đến chi phí xây dựng hay không? Hãy cùng Hải Thành tìm hiểu chi tiết qua bài viết này nhé!
.jpg)
Tìm hiểu khái niệm, cách tính và lưu ý quan trọng trong thiết kế khẩu độ nhà xưởng
Thế nào là khẩu độ nhà xưởng?
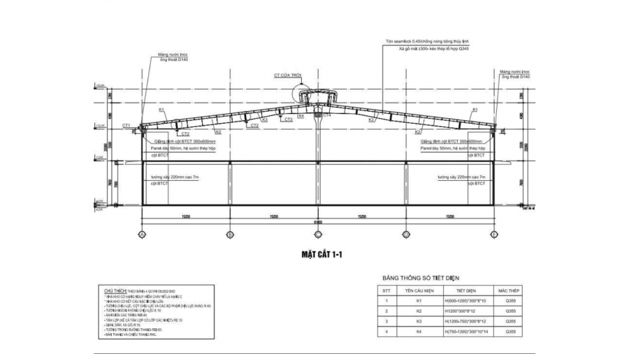
Để hiểu rõ khẩu độ nhà xưởng là gì, trước hết cần hiểu khái niệm khẩu độ trong kết cấu xây dựng. Trong kỹ thuật xây dựng, khẩu độ được hiểu là khoảng cách giữa hai điểm chịu lực chính của kết cấu, thường là khoảng cách giữa hai cột hoặc hai gối đỡ của dầm, vỉ kèo hoặc khung kết cấu.
Áp dụng vào công trình công nghiệp, khẩu độ nhà xưởng là gì có thể được hiểu là khoảng cách giữa hai cột khung chính của nhà xưởng theo phương ngang của công trình. Đây là khoảng không gian mà kết cấu mái hoặc dầm phải vượt qua mà không có cột trung gian.
Vì vậy, việc hiểu rõ khẩu độ nhà xưởng là gì giúp chủ đầu tư và đơn vị thiết kế lựa chọn được phương án kết cấu phù hợp với công năng sử dụng.
.jpg)
Khái niệm khẩu độ nhà xưởng
Cách tính khẩu độ nhà xưởng
Sau khi hiểu rõ khẩu độ nhà xưởng là gì, bước tiếp theo là xác định cách tính khẩu độ trong thiết kế công trình công nghiệp.
Về nguyên tắc, khẩu độ nhà xưởng được tính bằng khoảng cách tim cột đến tim cột của hai khung kết cấu chính theo phương ngang nhà xưởng. Đây là khoảng cách mà hệ kết cấu mái phải vượt qua.
Công thức đơn giản có thể biểu diễn như sau: Khẩu độ = khoảng cách tim cột khung bên trái đến tim cột khung bên phải
Ví dụ: Nếu khoảng cách tim cột của hai khung là 30m thì khẩu độ của nhà xưởng sẽ là 30m.
Tuy nhiên, trong thực tế thiết kế, việc xác định khẩu độ không chỉ đơn giản là đo khoảng cách giữa các cột. Các kỹ sư cần xem xét nhiều yếu tố như công năng sản xuất của nhà máy, loại kết cấu sử dụng (thép tiền chế hoặc bê tông cốt thép), tải trọng mái và tải trọng cầu trục,...
.jpg)
Hiểu rõ khẩu độ nhà xưởng là gì giúp việc tính toán tối ưu mà vẫn đảm bảo kết cấu
>> Xem thêm: Xây dựng kết cấu nhà xưởng khung thép như thế nào?
Khẩu độ nhà xưởng phổ biến trong thực tế
Trong thực tế xây dựng công nghiệp, khi tìm hiểu khẩu độ nhà xưởng là gì, có thể thấy các công trình thường được chia thành nhiều nhóm khẩu độ khác nhau tùy theo quy mô nhà máy và công năng sử dụng.
Khẩu độ nhỏ (dưới 15m)
Nhà xưởng có khẩu độ nhỏ thường được sử dụng cho các công trình quy mô nhỏ như xưởng cơ khí, xưởng gia công hoặc kho chứa hàng.
Ưu điểm của loại khẩu độ này là kết cấu đơn giản, chi phí xây dựng thấp và dễ thi công. Tuy nhiên, do khoảng cách cột nhỏ nên không gian sản xuất bị chia nhỏ, đôi khi gây khó khăn cho việc bố trí dây chuyền máy móc.
Khẩu độ trung bình (15m – 25m)
Đây là loại khẩu độ phổ biến nhất trong các nhà xưởng công nghiệp hiện nay. Khi tìm hiểu khẩu độ nhà xưởng là gì, nhiều chủ đầu tư sẽ thấy phần lớn các nhà máy sản xuất có khẩu độ trong khoảng này.
Khẩu độ từ 18m, 20m đến 24m thường được sử dụng cho các nhà máy sản xuất hàng tiêu dùng, nhà máy chế biến thực phẩm hoặc kho logistics. Khoảng khẩu độ này tạo ra không gian đủ rộng cho hoạt động sản xuất mà vẫn đảm bảo chi phí kết cấu hợp lý.
Khẩu độ lớn (từ 30m trở lên)
Các nhà xưởng có khẩu độ lớn thường được áp dụng cho những công trình yêu cầu không gian sản xuất rộng như nhà máy lắp ráp ô tô, nhà máy sản xuất thiết bị lớn hoặc kho logistics quy mô lớn.
Trong các trường hợp này, khi phân tích khẩu độ nhà xưởng là gì, các kỹ sư thường phải sử dụng các giải pháp kết cấu đặc biệt như vì kèo thép lớn, dầm tổ hợp hoặc hệ khung thép tiền chế để đảm bảo khả năng vượt nhịp.
Khẩu độ lớn giúp hạn chế cột giữa nhà xưởng, tạo không gian vận hành linh hoạt hơn cho các dây chuyền sản xuất hiện đại.
Lưu ý quan trọng trong thiết kế khẩu độ nhà xưởng
Khi thiết kế công trình công nghiệp, việc hiểu rõ khẩu độ nhà xưởng là gì chỉ là bước đầu. Để lựa chọn khẩu độ phù hợp, cần lưu ý nhiều yếu tố kỹ thuật khác nhau, bao gồm:
- Dây chuyền sản xuất và bố trí thiết bị: Một nhà xưởng có khẩu độ quá nhỏ có thể gây cản trở cho việc di chuyển máy móc hoặc xe nâng trong quá trình vận hành.
- Khả năng chịu lực của kết cấu: Nếu khẩu độ quá lớn mà không có giải pháp kết cấu phù hợp, công trình có thể gặp rủi ro về độ võng hoặc ổn định kết cấu.
- Khả năng mở rộng nhà máy trong tương lai: Nhiều nhà máy hiện nay lựa chọn khẩu độ lớn ngay từ đầu để thuận tiện cho việc mở rộng dây chuyền sản xuất.
- Chi phí đầu tư của dự án: Một phương án khẩu độ hợp lý sẽ giúp cân bằng giữa không gian sản xuất và chi phí kết cấu.
.png)
Một số lưu ý khi thiết kế khẩu độ nhà xưởng
>> Xem thêm: Mẫu thiết kế nhà xưởng 2026 hiện đại, mang tính ứng dụng cao
Khẩu độ nhà xưởng ảnh hưởng như thế nào đến chi phí xây dựng
Khi phân tích khẩu độ nhà xưởng là gì, một trong những vấn đề được nhiều chủ đầu tư quan tâm nhất là chi phí xây dựng.
Trên thực tế, khẩu độ càng lớn thì yêu cầu về kết cấu càng cao. Điều này dẫn đến việc phải sử dụng dầm lớn hơn, thép nhiều hơn hoặc hệ kết cấu phức tạp hơn, từ đó làm tăng chi phí xây dựng. Ngược lại, nếu khẩu độ quá nhỏ thì số lượng cột trong nhà xưởng sẽ tăng lên. Điều này vừa làm tăng chi phí móng, vừa ảnh hưởng đến việc bố trí dây chuyền sản xuất.
Do đó, khi xác định khẩu độ nhà xưởng là gì, các đơn vị thiết kế thường phải tìm ra phương án tối ưu để cân bằng giữa chi phí xây dựng và công năng sử dụng.
.jpg)
Lựa chọn khẩu độ hợp lý giúp giảm chi phí kết cấu và tăng hiệu quả vận hành nhà máy trong dài hạn
Kết luận
Tóm lại, việc hiểu rõ khẩu độ nhà xưởng là gì là yếu tố quan trọng trong quá trình thiết kế và xây dựng nhà xưởng công nghiệp. Khẩu độ không chỉ quyết định không gian sản xuất mà còn ảnh hưởng trực tiếp đến giải pháp kết cấu và chi phí đầu tư của công trình.
Nếu bạn đang tìm kiếm giải pháp thiết kế và thi công nhà xưởng tối ưu khẩu độ, Hải Thành luôn sẵn sàng tư vấn các phương án kết cấu phù hợp nhất cho dự án của bạn.
Địa chỉ: Số 126 Hoàng Ngọc Phách, Lê Chân, TP Hải Phòng
Hotline: 0904.140.582
Gmail: haithanhxaydung@gmail.com
Website: xaydunghaithanh.com
Tham khảo dự toán chi phí đầu tư nhà xưởng Hải Phòng. Hải Thành chia sẻ các bước thực hiện dự án từ quy hoạch, khảo sát, thiết kế đến xin giấy phép và thi công....
Trong thiết kế nhà xưởng công nghiệp, việc xác định khẩu độ nhà xưởng là một trong những bước quan trọng nhất của quá trình thiết kế kết cấu. Vậy khẩu độ...
Trong bối cảnh chuỗi cung ứng toàn cầu tiếp tục dịch chuyển về khu vực Đông Nam Á, Việt Nam đang trở thành điểm đến quan trọng của nhiều doanh nghiệp sản xuất q...
Trong mô hình nhà máy hiện đại, thiết kế văn phòng nhà xưởng trở thành nơi điều hành toàn bộ hoạt động sản xuất. Tuy nhiên, phần lớn văn phòng trong nhà xưởng c...
Trong quá trình thiết kế và thi công nhà xưởng hiện đại, hệ thống thông gió trở thành yếu tố quyết định trực tiếp đến môi trường sản xuất, năng suất lao động và...
