Bản vẽ thiết kế nhà xưởng cần có khi xây dựng 2026
Khi xây dựng nhà xưởng, nhiều chủ đầu tư thường tập trung vào chi phí, tiến độ thi công thay vì chú trọng đến bản vẽ thiết kế. Tuy nhiên, đây lại là cơ sở dữ liệu quan trọng giúp định hình toàn bộ công trình ngay từ giai đoạn đầu.
Vậy bản vẽ thiết kế nhà xưởng gồm những gì? Vai trò của bản vẽ thiết kế trong quá trình xây dựng ra sao? Hãy cùng Hải Thành phân tích chi tiết trong bài viết dưới đây nhé!
.jpg)
Tìm hiểu bản vẽ thiết kế nhà xưởng 2026
Bản vẽ thiết kế nhà xưởng là gì?
Bản vẽ thiết kế nhà xưởng là bộ tài liệu kỹ thuật thể hiện toàn bộ thông tin của công trình dưới dạng hình ảnh, kích thước và thông số kỹ thuật. Thông qua các bản vẽ này, kiến trúc sư và kỹ sư xây dựng có thể truyền tải đầy đủ ý tưởng thiết kế cũng như các yêu cầu kỹ thuật của dự án.
Trong xây dựng công nghiệp, bản vẽ thiết kế nhà xưởng thường bao gồm nhiều nhóm bản vẽ khác nhau như bản vẽ quy hoạch tổng thể, bản vẽ kiến trúc, bản vẽ kết cấu và bản vẽ hệ thống kỹ thuật. Mỗi loại bản vẽ đảm nhận một chức năng riêng nhưng tất cả đều liên kết chặt chẽ để tạo nên một hồ sơ thiết kế hoàn chỉnh.
Đối với các dự án nhà xưởng hiện đại, bản vẽ thường được triển khai bằng các phần mềm thiết kế kỹ thuật chuyên dụng nhằm đảm bảo độ chính xác cao và khả năng phối hợp giữa các bộ môn kiến trúc, kết cấu và cơ điện.
.jpg)
Khái quát về bản vẽ thiết kế nhà xưởng
>> Xem thêm: Thị trường nhà xưởng xây sẵn 2026: Xu hướng phát triển của bất động sản công nghiệp
Vai trò của bản vẽ thiết kế nhà xưởng trong xây dựng
Trong thực tế xây dựng, bản vẽ thiết kế nhà xưởng là bản kế hoạch tổng thể của dự án. Từ giai đoạn chuẩn bị đầu tư đến thi công và vận hành, bản vẽ thiết kế luôn là cơ sở quan trọng để triển khai các công việc liên quan. Các chức năng chính của một bản vẽ thiết kế bao gồm:
- Lập kế hoạch thi công nhà xưởng: Thông qua các bản vẽ, nhà thầu có thể xác định rõ quy mô công trình, phương án kết cấu, vật liệu sử dụng cũng như trình tự thi công. Điều này giúp quá trình triển khai công trình diễn ra thuận lợi và giảm thiểu xung đột kỹ thuật giữa các hạng mục.
- Giám sát chất lượng thi công: Trong quá trình xây dựng, kỹ sư giám sát sẽ dựa vào bản vẽ để kiểm tra kích thước, vị trí cấu kiện, vật liệu sử dụng và các thông số kỹ thuật. Nhờ vậy công trình được đảm bảo thi công đúng thiết kế, hạn chế sai sót và đảm bảo an toàn kết cấu.
- Dự toán chi phí đầu tư: Từ bản vẽ, kỹ sư dự toán có thể bóc tách khối lượng vật liệu, tính toán chi phí xây dựng và lập kế hoạch tài chính cho dự án. Điều này giúp chủ đầu tư kiểm soát ngân sách và tránh phát sinh chi phí ngoài dự kiến.
- Quản lý vận hành và bảo trì nhà xưởng: Khi cần sửa chữa, nâng cấp hoặc cải tạo công trình, bản vẽ thiết kế sẽ cung cấp thông tin cần thiết để các kỹ sư thực hiện công việc một cách chính xác và an toàn.
(1).png)
Chức năng chính của một bản vẽ thiết kế nhà xưởng
>> Xem thêm: Dự toán chi phí đầu tư nhà xưởng Hải Phòng: Các khoản chi và quy trình thực hiện dự án
Các hạng mục trong bản vẽ thiết kế nhà xưởng cần có khi xây dựng
Một bộ bản vẽ thiết kế nhà xưởng tiêu chuẩn thường bao gồm nhiều loại bản vẽ khác nhau, mỗi loại đảm nhiệm một vai trò riêng trong việc mô tả và triển khai công trình.
Bản vẽ tổng mặt bằng nhà xưởng
Bản vẽ tổng mặt bằng là bản vẽ quy hoạch thể hiện toàn bộ khu đất xây dựng nhà xưởng. Bản vẽ này thường được triển khai theo tỷ lệ 1/500 và cho thấy vị trí của các hạng mục trong khu đất.
Thông qua bản vẽ tổng mặt bằng, người xem có thể nhận biết cách bố trí các khu vực như khu sản xuất, khu văn phòng, kho bãi, bãi xe, đường giao thông nội bộ và hệ thống hạ tầng kỹ thuật. Đây là bản vẽ quan trọng trong hồ sơ xin phép xây dựng và cũng là cơ sở để triển khai các bản vẽ chi tiết tiếp theo.
.jpg)
Mặt bằng tổng thể quy hoạch dự án nhà xưởng sản xuất ván ép Châu Đức - Tập đoàn Hòa Phát
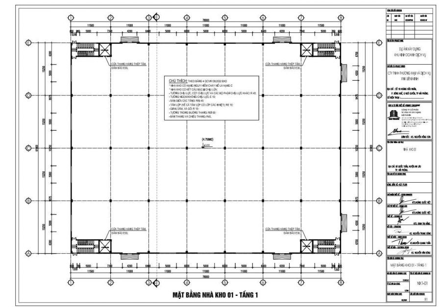
Bản vẽ kiến trúc nhà xưởng
Bản vẽ kiến trúc mô tả hình dạng và cách tổ chức không gian của công trình. Trong thiết kế nhà xưởng, bản vẽ kiến trúc thường bao gồm các bản vẽ mặt bằng, mặt đứng và mặt cắt.
Bản vẽ mặt bằng thể hiện cách bố trí các khu vực chức năng trong nhà xưởng như khu sản xuất, khu kho, khu văn phòng hoặc khu phụ trợ. Bản vẽ mặt đứng cho thấy hình dạng bên ngoài của công trình, bao gồm chiều cao nhà xưởng, hệ mái và các chi tiết kiến trúc. Trong khi đó, bản vẽ mặt cắt giúp thể hiện cấu trúc không gian bên trong và chiều cao thông thủy của nhà xưởng.
.jpg)
Mặt bằng kiến trúc tiêu biểu cho một nhà xưởng
Bản vẽ kết cấu nhà xưởng
Trong các loại bản vẽ thiết kế nhà xưởng, bản vẽ kết cấu được xem là phần quan trọng nhất vì nó quyết định khả năng chịu lực và độ an toàn của công trình.
Bản vẽ kết cấu thể hiện chi tiết các thành phần chịu lực của nhà xưởng như móng, cột, dầm, kèo và hệ giằng. Đối với nhà xưởng kết cấu thép, bản vẽ sẽ mô tả rõ kích thước cấu kiện, vị trí liên kết và phương án lắp dựng.
Thông qua bản vẽ kết cấu, đơn vị thi công có thể sản xuất và lắp đặt các cấu kiện một cách chính xác. Điều này đặc biệt quan trọng đối với các nhà xưởng nhịp lớn hoặc nhà xưởng sử dụng kết cấu thép tiền chế.
.jpg)
Bản vẽ kết cấu thể hiện chi tiết các hạng mục thi công của nhà xưởng
>> Xem thêm: Dự án thiết kế nhà kho tại Hải Phòng – Giải pháp cho khu kinh doanh dịch vụ hiện đại
Bản vẽ hệ thống cơ điện nhà xưởng
Bên cạnh kiến trúc và kết cấu, nhà xưởng hiện đại còn yêu cầu hệ thống kỹ thuật phức tạp để phục vụ hoạt động sản xuất. Vì vậy, bản vẽ cơ điện (MEP) là một phần không thể thiếu trong hồ sơ thiết kế.
Bản vẽ cơ điện bao gồm các hệ thống như hệ thống cấp điện, hệ thống chiếu sáng, hệ thống cấp thoát nước, hệ thống thông gió và điều hòa không khí, cũng như hệ thống phòng cháy chữa cháy.
.jpg)
Bản vẽ phần điện giúp đảm bảo toàn bộ hệ thống kỹ thuật được lắp đặt đúng vị trí
Đơn vị thiết kế nhà xưởng uy tín tại Hải Phòng
Trong bối cảnh phát triển mạnh của các khu công nghiệp tại miền Bắc, nhu cầu xây dựng nhà xưởng ngày càng tăng cao. Điều này đòi hỏi các doanh nghiệp phải lựa chọn đơn vị thiết kế có kinh nghiệm để đảm bảo dự án được triển khai hiệu quả.
Xây dựng Hải Thành là đơn vị chuyên thiết kế và thi công nhà xưởng trọn gói tại Hải Phòng. Với kinh nghiệm thực hiện nhiều dự án như nhà máy sản xuất, kho logistics và nhà xưởng công nghiệp, chúng tôi tự hào đem đến những công trình chất lượng, đáp ứng yêu cầu chủ đầu tư.
Hải Thành đem đến các dịch vụ như sau:
- Tư vấn thủ tục đầu tư và xây dựng nhà xưởng
- Thiết kế xin cấp phép xây dựng nhà xưởng
- Thiết kế quy hoạch tổng mặt bằng xây dựng nhà xưởng
- Thiết kế và thi công sàn phẳng vượt nhịp nhà xưởng
- Thiết kế và thi công sàn cáp DUL nhà xưởng
- Thi công xây dựng nhà xưởng
.jpg)
Hải Thành thi công nhà máy sản xuất bao bì 3D tại Thái Bình
>> Xem thêm: Báo giá thi công khoan cọc nhồi nhà xưởng Hải Phòng 2025
Kết luận
Bản vẽ thiết kế nhà xưởng đầy đủ là nền tảng quan trọng để triển khai dự án xây dựng một cách hiệu quả và an toàn. Từ quy hoạch mặt bằng, kiến trúc, kết cấu đến hệ thống cơ điện, mỗi loại bản vẽ đều đóng vai trò riêng nhưng cùng hướng đến mục tiêu đảm bảo chất lượng công trình.
Vì vậy, trước khi bắt đầu xây dựng nhà xưởng, chủ đầu tư nên lựa chọn đơn vị thiết kế có kinh nghiệm để xây dựng hồ sơ thiết kế chính xác, tối ưu chi phí và phù hợp với định hướng phát triển lâu dài của doanh nghiệp.
Địa chỉ: Số 126 Hoàng Ngọc Phách, Lê Chân, TP Hải Phòng
Hotline: 0904.140.582
Gmail: haithanhxaydung@gmail.com
Website: xaydunghaithanh.com
Trong bối cảnh doanh nghiệp ngày càng chịu áp lực về tiến độ sản xuất, thời gian thi công nhà xưởng thép tiền chế trở thành một...
Trong bối cảnh chi phí xây dựng ngày càng biến động và áp lực tiến độ sản xuất, bài toán lựa chọn kết cấu khi thi công nhà xưởng Hải Phòng không còn đơn giản. C...
Khi xây dựng nhà xưởng, nhiều chủ đầu tư thường tập trung vào chi phí, tiến độ thi công thay vì chú trọng đến bản vẽ thiết kế. Tuy nhiên, đây lại là cơ sở dữ li...
Tham khảo dự toán chi phí đầu tư nhà xưởng Hải Phòng. Hải Thành chia sẻ các bước thực hiện dự án từ quy hoạch, khảo sát, thiết kế đến xin giấy phép và thi công....
Trong thiết kế nhà xưởng công nghiệp, việc xác định khẩu độ nhà xưởng là một trong những bước quan trọng nhất của quá trình thiết kế kết cấu. Vậy khẩu độ...
